中心传动浓缩机

一、中心传动污泥浓缩机简介
污水处理系统产生的污泥,含水率高,体积大,处理和处置均不方便。污泥浓缩是缩小污泥体积和降低污泥含水率的一种经济、有效的方法,它为后续的污泥脱水或污泥消化节约了大量的运行成本,所以污泥浓缩是污水处理过程中的一个重要的工艺过程。
本设备是污泥重力浓缩形式的一种,它适用于污泥浓缩池中,用于污泥浓缩和刮泥。
二、中心传动污泥浓缩机的结构
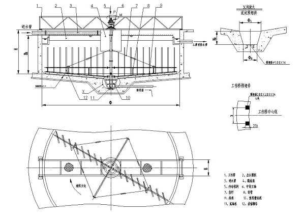
中心传动污泥浓缩机主要有减速驱动机构、传动立轴、刮臂、水下轴承及集泥槽刮板等部件组成,整台浓缩机的荷载都作用在固定横跨池径的工作桥中心。
三、中心传动污泥浓缩机的原理
中心传动污泥浓缩机一般适用于较小的池径(4~20m),池径小于14m时,采用蜗轮蜗杆传动;大于14m时,采用减速机带动回转支承传动。
污泥浓缩机机主要由工作桥、传动装置、传动轴、刮臂、刮泥板等组成。该机设有横跨池子的固定平台,工作时其整机载荷都作用在工作桥中心;污水经池中心稳流筒均流到四周。随着过流面积增大而流速降低,污水中的沉淀物沉淀于池底,刮泥机将沉淀的污泥刮集到中心集泥坑中,利用水压将其从污泥管中排出。该机结构简单,传动平稳,动力消耗低,刮泥效果好,是一种理想的排泥设备。
四、中心传动污泥浓缩机的特点
1、池底刮泥,驱动装置采用减速驱动机构传动, 结构紧凑,机械效率高。
2、斜交型刮泥板, 连续性好、集泥的效率高;
3、不锈钢刮泥板底下再安装刮泥橡胶板, 保证刮泥彻底干净,不会有浮泥现象发生。
4、主梁选用方钢制作,结构强度大。
5、操作简单,可实现远程控制。
联系方式:
固话:0510-87832633
手机:18601569136
下一篇:没有了!




